機材リスト
音響設備 / SOUND SYSTEM
| 品目 | メーカー | 数量 |
| Hi box | MARTIN AUDIO F15 | 2 |
| Low box | MARTIN AUDIO 218X | 2 |
| Mixer | YAMAHA DM7 | 1 |
| Power amp | QSC PLD4.5 | 1 |
| Side monitor | RCF/NX45 | 2 |
| Foot monitor | YAMAHA CHR12M | 4 |
| Mic | SENNHEISER EW 100 G4-835-S-JB | 8 |
| Mic stand | K&M210 K&M259 | 10 |
| CDJ | Pioneer CDJ-2000 Nexus2 Pioneer CDJ900 | 2 |
| DJ Mixer | Pioneer DJM900 Nexus2 Pioneer DJM900 Nexus | 1 |
| TURNTABLE | Technics SL1200-MK6 | 2 |
照明設備 / Lighting
| 品目 | メーカー | 数量 |
| Mixer | AVOLITES Quartz ver15 (Fader Wing/Touchパネル) | 1 |
| Moving | 150W | 4 |
| WASH | 3 | |
| BETOPPER/LM0740 | 4 | |
| E-PAR56(4) | LEDPAR | 10 |
| CL | 2 | |
| STROBE(2) | MINIBRUTE | 2 |
| LED SPOT | LED BAR | 2 |
| PARLIGHT | 4 | |
| SMOKE MACHINE | ANTARI FLG5 | 1 |
映像 / Projector
| 品目 | メーカー | 数量 |
| Projector | BENQ MW632ST | 1 |
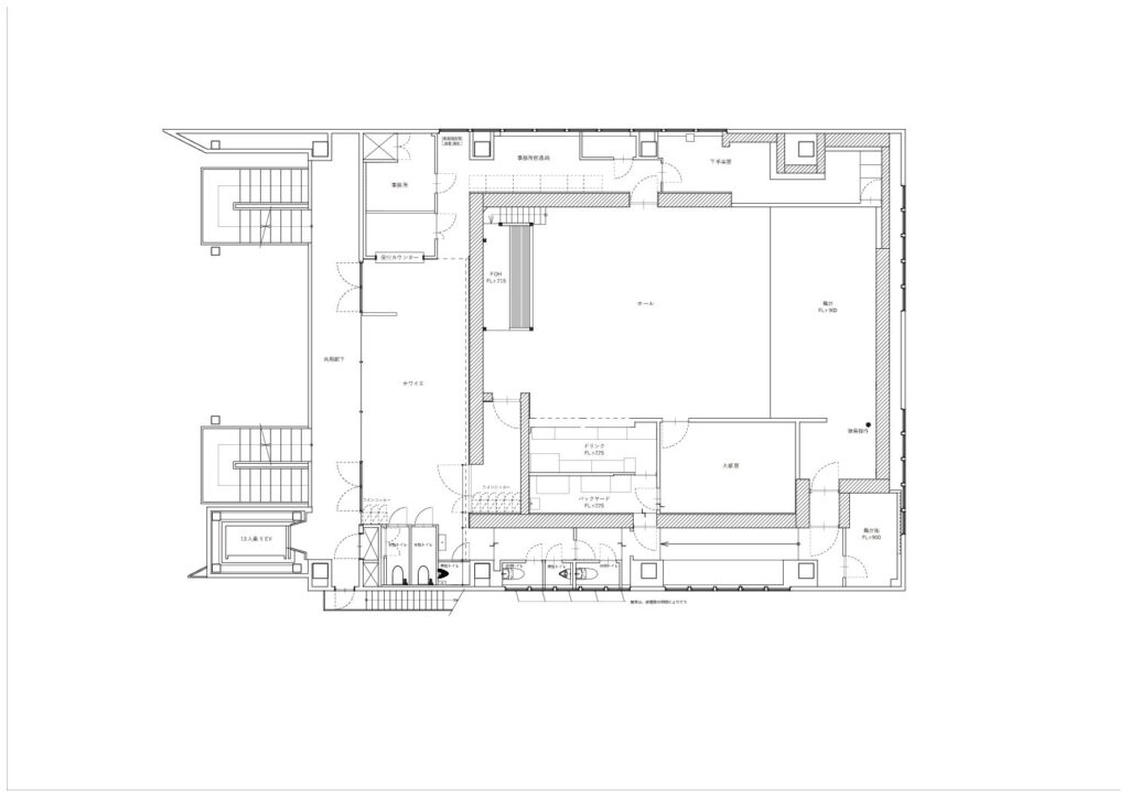
会場図面(平面図)

